Стальная опора 273-КП-А23
Стальная опора 273-КП-А23
Цена от:
1 250,00 руб.
1 250,00 руб.
Артикул: 273-КП-А23
Производитель: Россия
Давление: До 10 МПа (100 кг/см2)
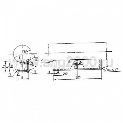
Диаметр: 273 мм
| Наружный диаметр трубопровод | Исполнение | h | h1 | h2 | B | S | a | в | с | к | Масса не более, кг | Допускаемые нагрузки, кН | ||
| Вертикальная Qy | Осевая Pz при |
|||||||||||||
| Px=0.2Pz | Px=0.5Pz | |||||||||||||
| 273 | A23 | 150 | 190 | 145 | 200 | 4 | 45 | 5 | 6 | 6 | 16.6 | 40 | 70 | 95 |
Конечную стоимость изделия уточняйте у наших менеджеров. Также менеджеры ООО «СтройНефтеГаз» всегда готовы дать профессиональную консультацию по техническим характеристикам продукции и условиям ее эксплуатации, в любое время – 24 часа в сутки.




















